An Experience to Remember.
An experience to remember
This Brooklyn Restaurant is an experience of its own - providing plant-based Ethiopian food that reaches all of your senses. The design touches on the colorful nature of the cuisine and culture, with murals on nearly every wall, while providing a very Brooklyn-forward industrial feel. It melds the clean, modern design with warm wood tones and vibrant colors.
Collaborated as the Design Architect. Architect of Record: Prainito Architect P.C.
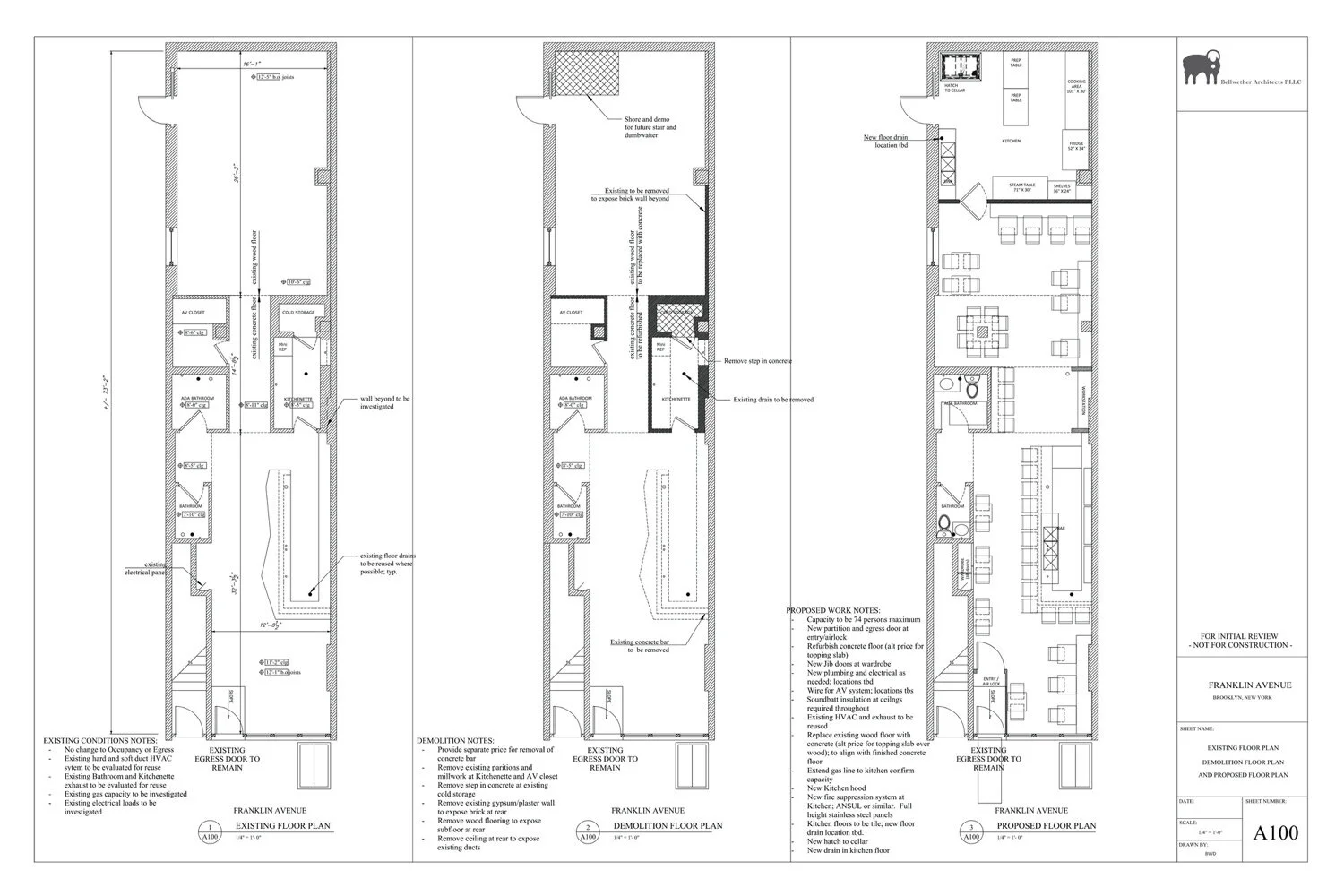
Design Plans - BAPLLC
Design Plans - BAPLLC
Interior Bar - photo by others
Interior - Bar - photo by BAPLLC
Interior - Bar - photo by BAPLLC
Interior - Rear Seating - photo by BAPLLC
Interior - Rear Seating - photo by BAPLLC
Interior - Rear Seating - photo by BAPLLC
Interior - Bar - photo by BAPLLC

