Recently Completed Renovation!
Like each of us - sometimes you just need a little renovation! This apartment renovation is in progress, and touches nearly every room while leaving everything right where it always was.
This renovation includes a new Kitchen and Dining banquette, renovated bathrooms, and new lighting and decoration throughout. No room will be left untouched; each room will take on a new character.
General Contractor: Attic to Basement Home Improvement
Photography: Kirra Cheers
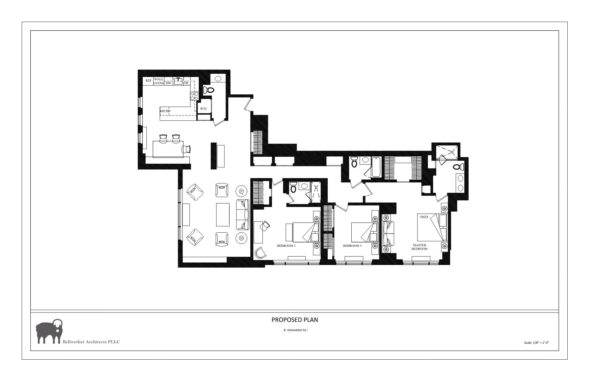
Floor Plan - BAPLLC
Building Exterior at 62nd Street
Living Room and Bar
Living Room and Bar
Kitchen
Banquette and Kitchen
Bedroom
Bedroom
Bedroom
Bedroom
Entry and Powder Room
Powder Room
Bedroom Hall
Primary Bedroom
Primary Bedroom
Walk-in-Closet
Primary Bath
Primary Bath
Secondary Bath

