A family retreat
‘Their is no place like home’ - except what is better:
A family retreat
More comfortable and private than going away on vacation.
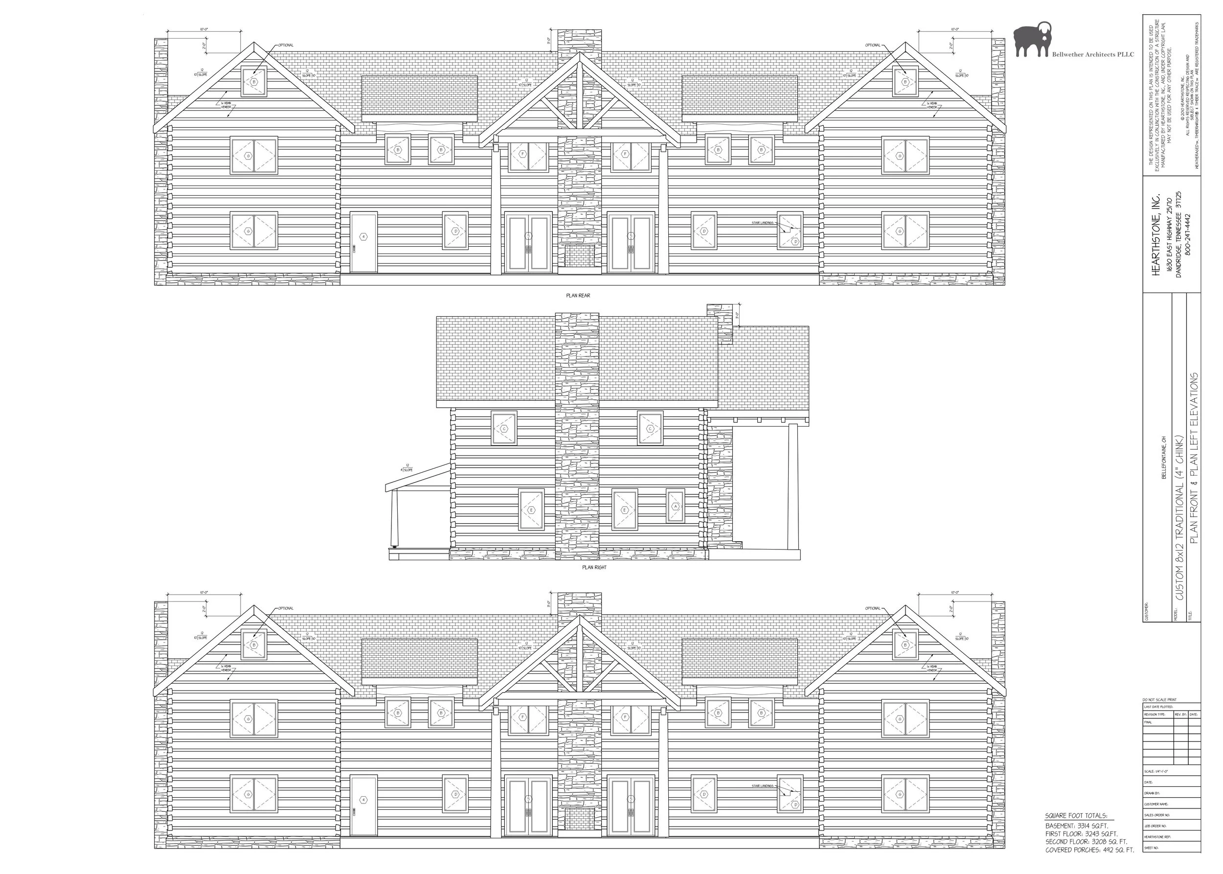
This unique family retreat was designed for two brothers and their growing families. They envisioned a new log-cabin home on their property, a place for them to come together for holidays, family events, and summers spent with the kids in the woods. Tucked into a 300 acre lot, they have all of the privacy, and woodlands they need, with all of the luxuries of a new beautiful home.
Collaborated as the Design Architect - Architect of record: Hearthstone, Inc.
General Contractor: Hearthstone, Inc.
The home is designed with two master suites on the first floor, and an expansive central area for cooking together, family dinners, and hanging out by the fire. The rear of the house has an outdoor fireplace to cozy up to on summer nights while gazing at the stars.
The kids have the upstairs practically to themselves; a large playroom in the center, and their bedrooms at the wings. The basement (not shown)
is decidedly for adults - with a large mudroom to bring in their game from the day’s hunt, and a bar imported from Ireland replete with beer on tap.
This project is the home of dear friends. They came to me for some design help while I was in graduate school at MIT, before I became a licensed Architect. As such, I provided schematic design drawings for review, and ultimately for the Builder to use as a starting point for their permitting and construction drawings.
Home is where the heart is.
As an Architect, I enjoy all of the phases of Architecture in their own right - from the creative process, through the coordination and construction phases, and finally to the hand-over to the Decorators and Owners. There is so much joy in seeing the Client happy in their new space - especially when you know that they will build memories there for years to come.

